| 
                
                    
                         
                    
      
                    
                 | 
                
                            
                    
            
                
                     | 
                 
                
                    
                        | Цена | 
                        2 436 000 р. | 
                     
                
                    
                        | Район | 
                        Кировский | 
                     
                
                    
                        | Адрес | 
                        Стачек проспект, 79 литера А | 
                     
                
                    
                        | Площадь помещения | 
                        56,5 м2 | 
                     
                
                    
                        | Код лота: 62C46C9-4001-7407-1. Реализуется на торгах. 
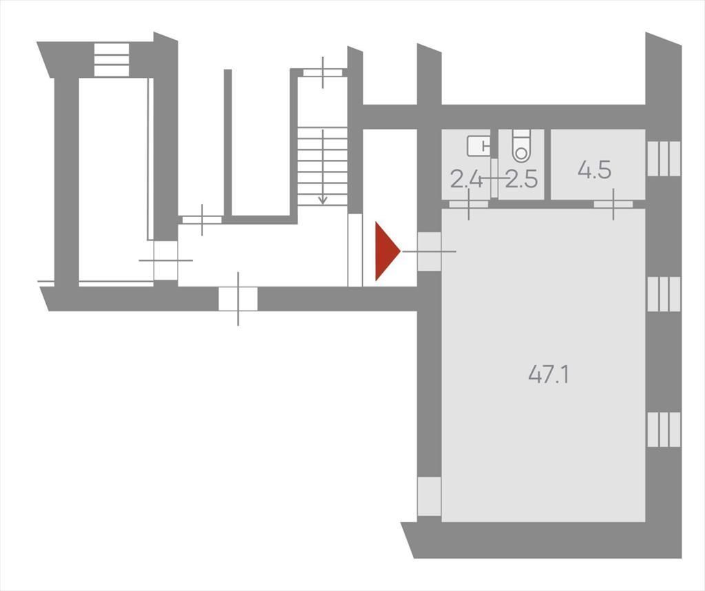
Продается нежилое помещение свободного назначения в Кировском районе Санкт-Петербурга. Помещение расположено в десятиэтажном здании 1954 года постройки. Окружение объекта составляет преимущественно жилая застройка. В ближайшем окружении располагаются школы, детские сады, магазины, кафе, рестораны, аптеки. Плотность застройки высокая. Неорганизованная парковка на ближайших улицах и внутриквартальных проездах. Интенсивность транспортных и пешеходных потоков непосредственно возле объекта средняя. Транспортная доступность отличная. Ближайшая станция метро "Автово" расположена на расстоянии 330 м. Помещение находится в удовлетворительном состоянии. В настоящее время помещение не используется. Выявленные перепланировки: заложены оконные проемы и заложен проход в подлестничное пространство Площадь помещения: 56,5 кв. м Этаж: Подвал, заглубление 1,40 м Высота: 2,20 м Окна: 3 во двор подвальные (оконные проемы заложены) Вход: 1 общий вход со двора. Доступ во двор не ограничен. Коммуникации: Визуально выявлены элементы электроснабжения, отопления, водоснабжения, канализации. Требуется заключение договоров с балансодержателями сетей! В помещении проходят транзитные трубы! Возможное использование: офис Помещение реализуется с торгов по приватизации по поручению Комитета по управлению городским имуществом Правительства Санкт-Петербурга. Торги проводятся на электронной площадке Lot-Online. Просмотр помещения осуществляется в период приема заявок на участие в торгах и только в рабочее время. Заявку на организацию осмотра необходимо подавать заранее. 
https: //catalog. lot-online. ru/index. php?dispatch=products. view&product_id=1300723  | 
                     
                    
             
 
               
                    
                    
                 | 
                
                    
                        
                         
                        Объявление № 23459596 
                        
                        Дата подачи:  22 октября 2025 г. 5:51 
                        
                        Дата обновления:  22 октября 2025 г. 4:00 
                        
                        Просмотров 3
                         Хотите продать быстрее?
                        
                        
                        
                        
                        
                     
                    
                    
                    
                 |